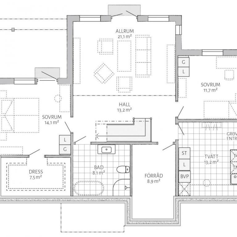
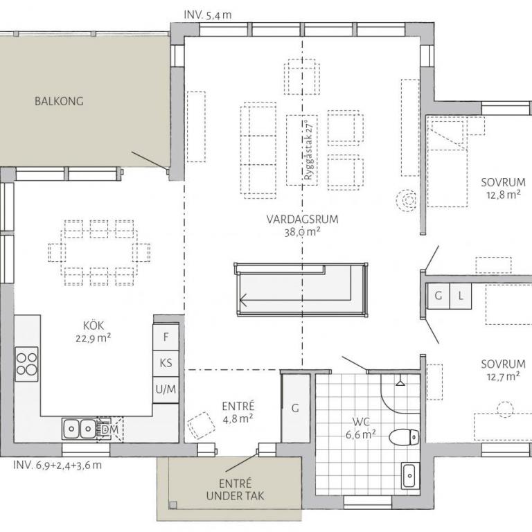
Sundvik ist ein besonders gut gelungenes Haus für die Hanglage. Das Wechselspiel von Holzpanelen und Putz wirkt interessant und lenkt den Blick auf die beiden großen Balkone. Die üppigen Fensterflächen und die Kathedraldecke des Wohnzimmers zeigen dem Betrachter bereits auf dem ersten Blick, dass es sich hier um ein Haus der Sonderklasse handelt. Der Hauseingang kann, ohne größere Veränderungen des Hauses, auf der Hangseite gebaut werden. Aufmerksamkeit verdient die detaillierte Grundrissplanung im Inneren des Hauses.
(C) 2023 ZUHAUS Schwedenbau GmbH Impressum / Datenschutz




