Die drei miteinander verbundenen Baukörper geben diesem Haus einen eigenständigen Charakter, die dem Betrachter eine Geschichte seiner individuellen Bewohner zu erzählen scheinen. Der Mittelteil, über den das Haus auch betreten wird, wirkt durch die Kathedraldecke wie eine große Empfangshalle.
Die hier umgesetzte Grundrissidee unterstützt ein harmonisches Miteinander genauso, wie die Rückzugsmöglichkeit jedes einzelnen Mitglieds der Familie. Die große Terrasse erweitert den Lebensbereich in der warmen Jahreszeit.
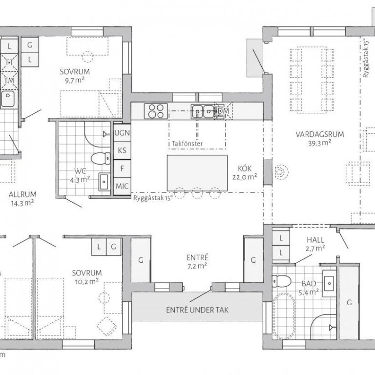
Der Vorteil dieser Planung liegt in der zentralen Funktion des mittleren Baukörpers. Von hier aus kann nicht nur jeder Raum des Hauses erreicht werden, sondern auch ein großer Koch- und Essbereich lädt die Bewohner zum Einnehmen der Mahlzeiten ein. In der offenen Küche ist Raum genug um gemeinsam Rezepte auszuprobieren und zu Kochen. Vom Elternschlafzimmer, das gleich neben dem Wohnzimmer liegt, gelangt man in das große Badezimmer mit Dusche und Wanne. Ein zweites Bad teilen sich Kinder und Besucher. Ganz praktisch, lässt sich der Hauswirtschafstraum über eine Nebeneingangstür auch von außen betreten. Ein begehbarer Kleiderschrank und ausreichend Stauraum runden das Platzangebot ab.
(C) 2023 ZUHAUS Schwedenbau GmbH Impressum / Datenschutz


