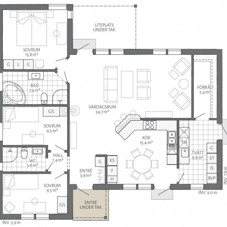
Bungalow
4 Zimmer und Küche - 118 m²
Ein repräsentatives Haus mit großem Walmdach, das sich bei nicht vorhandenem Keller sehr gut als Stauraum nutzen lässt. Der Bungalow erlebt gerade sein Comeback als „Lifestyle-Bauform“ mit offenen Grundrissen und lichtdurchfluteten Räumen. Das großzügig bemessene Walmdach sorgt für einen geschützten Eingangs- und Terrassenbereich.
Die getrennten Trakte „Schlafen“ und „Wohnen“ sind ein klarer Vorteil dieses schönen Entwurfes. Stein oder Putzfassade sind auf Wunsch möglich.
(C) 2023 ZUHAUS Schwedenbau GmbH Impressum / Datenschutz

