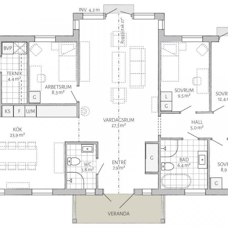
Tallåsen ist ein typisch schwedisches Familienhaus. Die Bauweise entspricht sowohl der klassischen als auch der modernen Bautradition und ist unser meist verkaufter Bungalow. Durch die Mitte des Hauses verläuft eine Kathedraldecke, die zweifellos ein Highlight des Hauses ist. In den Wohnraum wird ungewöhnlich viel Licht gespült , so entsteht eine besondere Atmosphäre, die man selbst einmal erlebt haben muss.
Der Grundriss des Eingangsbereiches, besticht durch seine Helligkeit, praktischen Aufbewahrungsmöglichkeiten sowie eine leicht erreichbare Ankleide. Durch die gut durchdachte Aufteilung der Räume ergibt sich die Möglichkeit für zwei Schlafzimmer plus ein zusätzliches Arbeitszimmer im rechten Teil des Hauses. Auf Grund der durchgehenden Kathedraldecke bildet der Eingangsbereich zusammen mit dem Wohnzimmer eine große und offene Atmosphäre. Im linken Teil des Hauses befinden sich die großzügige Küche , ein weiteres Schlafzimmer und eine Waschküche die durch einen Nebeneingang ebenso erreichbar sind.
(C) 2023 ZUHAUS Schwedenbau GmbH Impressum / Datenschutz


