2 Vollgeschosse
6 Zimmer und Küche (Grundriss)
180 m²
Der hier im Bauhaus-Stil vorgestellte Entwurf setzt Maßstäbe; modern, funktional und schlicht. Klare Linienführungen und geometrische Proportionen sind bei den Anhängern dieser Architektur, nur zwei von vielen Gründen sich für dieses moderne Haus zu entscheiden. Die unterschiedliche Farbgebung der Fassade unterstreicht die kubistische Form der Baukörper mit dem typischen Flachdach. Eine atemberaubende, zeitlose Architektur für Individualisten.
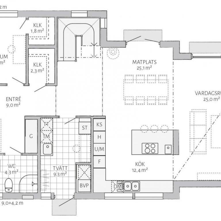
ERDGESCHOSS 99 m²
Die geräumige Eingangshalle bietet Fläche für Garderobe, Einbauschränke und Zugang zum Gäste-WC. Eine zum Wohnzimmer offene Küche unterstreicht die insgesamt großzügige Planung. Hauswirtschaftsraum mit separatem Zugang und ein Gästezimmer lassen hier kaum Wünsche offen.
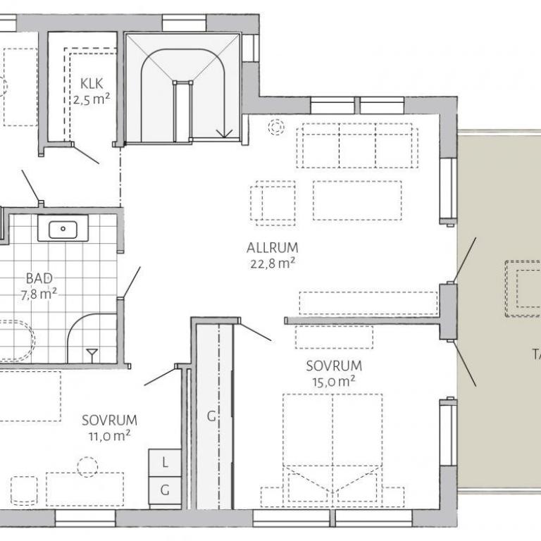
OBERGESCHOSS 78 m²
Vom Gemeinschaftsraum, den in Schweden üblichen „Allrum“, gelangt man in die drei Schlafräume und dem Badezimmer. Das Platzangebot auf dieser Ebene passt zu der Vorstellung die sich der Betrachter, dieser gut durchdachten Planung, macht. Auf kleineren Grundstücken kann die große Terrasse fehlende Grundstücksgröße spielend ausgleichen.
(C) 2023 ZUHAUS Schwedenbau GmbH Impressum / Datenschutz




