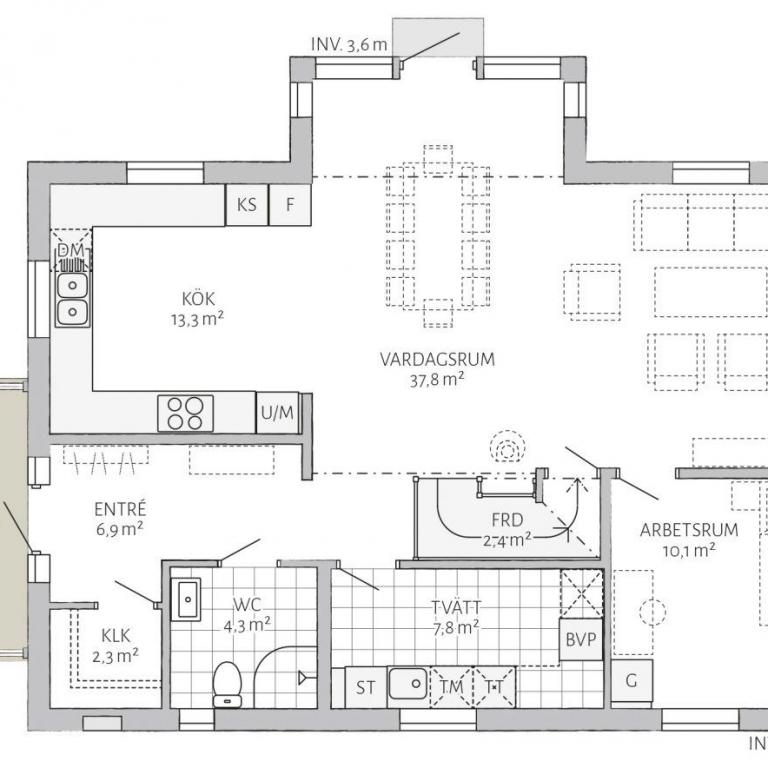
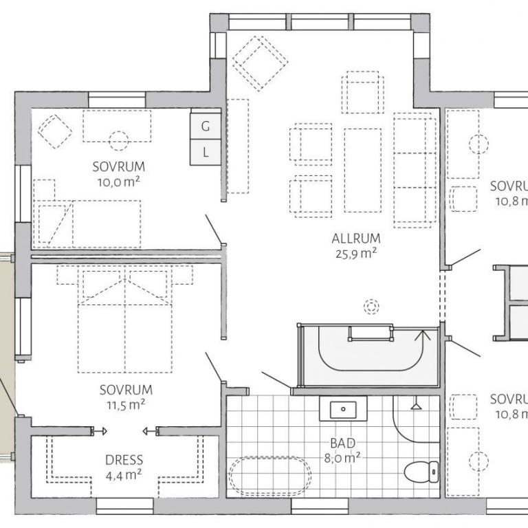
Lindbacken ist ein giebelseitig ausgerichtetes klassisches schwedisches Landhaus, mit vielen Zierelementen aus Holz und durchdachten Details. Die Fassade besteht im Erdgeschoss aus senkrecht und im Obergeschoss aus waagerecht verlegter Holzverkleidung. Der Eingang, über eine Veranda, ermöglicht eine Längsausrichtung des Gebäudes und ist somit ideal für schmale lange Grundstücke. Ein stattliches Einfamilienhaus mit zwei Vollgeschossen und Satteldach. Ein gelungener Entwurf für den Platzbedarf einer großen Familie.
(C) 2023 ZUHAUS Schwedenbau GmbH Impressum / Datenschutz




