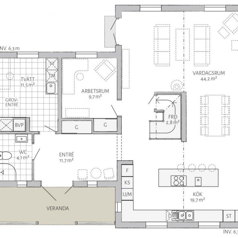
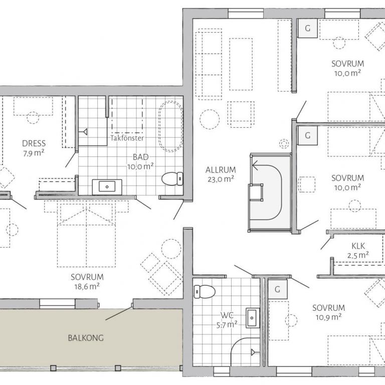
Dieses schwedische Landhaus mit seiner drei Giebelkonstruktion verschafft sich effektvoll Geltung. Die vorgesetzte Veranda mit Balkon unterstreicht nicht nur die gelungenen Proportionen, sondern bestimmt auch das äußere Erscheinungsbild, dass dem Haus eine besondere Note verleiht. Ein gut durchdachter Grundriss, ermöglicht einer vielköpfigen Familie großzügigen Lebensraum auf zwei Vollgeschossen.
(C) 2023 ZUHAUS Schwedenbau GmbH Impressum / Datenschutz




